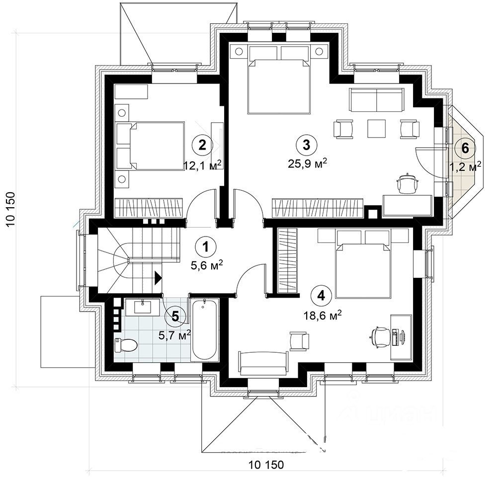
Продам дом на участке 15 соток. Двухэтажный дом площадью 200 кв. м. на ленточном монолитном армированном фундаменте на глубине промерзаний. Дом из газосиликатных блоков облицован кирпичом. Внутренние стены и Окна отштукатурены под маяки. Кровля из металлочерепицы. Утеплена. Полноценный третий этаж. В дом заведена вода, свет, канализация. На участке скважина и септик Топас. По границе участка идет газ. Участок огорожен, ровной и прямой формы. Дом поставлен на учёт в Росреестре. Присвоен кадастровый номер. Документы готовы к ипотеке. Собственник.