* Продаётся новый светлый, уютный, теплый дом в деревне Гридюкино.
* Дом каркасный, размер 912, участок 9 соток.
* Хорошее и удобное расположение участка.
* Участок ровный.
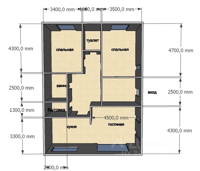
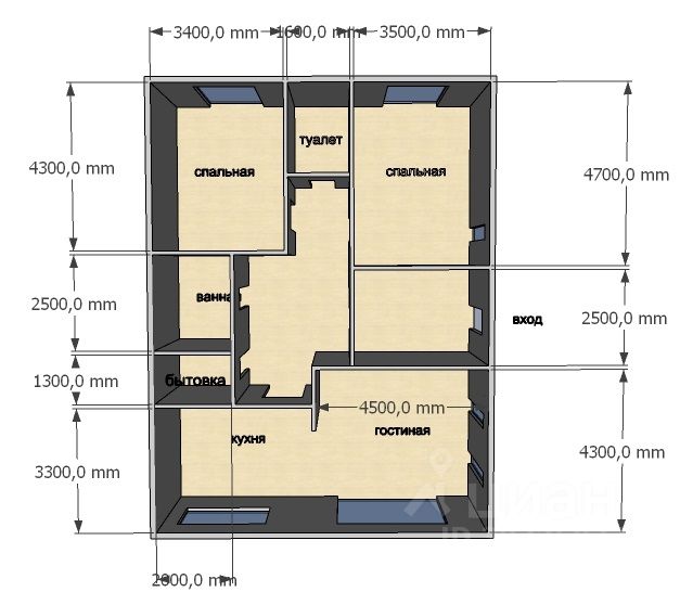
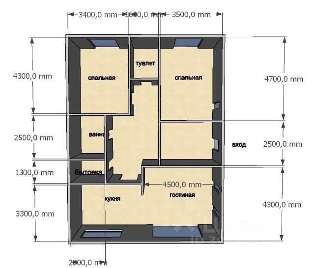
* Очень хорошее и удобное планировочное решение, большая кухня-гостинная, просторные две спальни, два санузла, тех помещение.
* В доме есть электричество, септик(канализация), вода(скважина).
* Газ проходит по границе участка.
* Хорошая транспортная доступность.
* Остановка общественного транспорта находится в 5 минутах от дома.
* До железнодорожной станции Михнева, 30 минут на транспорте.
* Магазины находятся в шаговой доступности.
* Звоните, отвечу на все интересующие вас вопросы.
* Быстрый выход на сделку.














