Если цена в объявлении изменится, мы сразу сообщим вам об этом на электронную почту.
Нажимая «Подписаться», вы соглашаетесь с правилами.
продам 4-к, Пионерская, 157 499 999 ₽
22 июля
Дата публикации объявления
Обн. 20 окт
Дата обновления объявления
8
Количество просмотров (+ просмотры за сегодня)
93 750 ₽/м²
Чистая продажа
Термин "Чистая продажа" означает, что в квартире никто не прописан или
есть куда выписаться и вывезти вещи. Это лучший вариант для покупателя.
Вероятность срыва сделки минимальна.
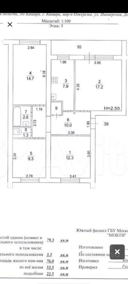
Продается уютная 4-комнатная квартира в Кашире, микрорайон Ожерелье, на улице Пионерская, 15. Общая площадь квартиры составляет 80 кв. м, из которых жилая — 53.5 кв. м. Кухня просторная — 8 кв. м. Квартира находится на 5 этаже 5-этажного кирпичного дома, построенного в 1983 году. Окна квартиры выходят во двор, обеспечивая тишину и уединение.
В квартире сделан качественный евроремонт. Все комнаты светлые и уютные, продуманная планировка позволяет использовать пространство максимально эффективно. В квартире есть одна лоджия. Совмещенный санузел выполнен в современном стиле. Квартира полностью готова к проживанию — заезжай и живи.
Дом в хорошем состоянии, поддерживается в чистоте и порядке. Для вашего автомобиля есть наземная парковка.
Продается уютная 4-комнатная квартира в Кашире, микрорайон Ожерелье, на улице Пионерская, 15. Общая площадь квартиры составляет 80 кв. м, из которых жилая — 53.5 кв. м. Кухня просторная — 8 кв. м. Квартира находится на 5 этаже 5-этажного кирпичного дома, построенного в 1983 году. Окна квартиры выходят во двор, обеспечивая тишину и уединение.
В квартире сделан качественный евроремонт. Все комнаты светлые и уютные, продуманная планировка позволяет использовать пространство максимально эффективно. В квартире есть одна лоджия. Совмещенный санузел выполнен в современном стиле. Квартира полностью готова к проживанию — заезжай и живи.
Дом в хорошем состоянии, поддерживается в чистоте и порядке. Для вашего автомобиля есть наземная парковка. Близость к необходимой инфраструктуре делает этот дом особенно привлекательным: рядом находятся школы, детские сады, клиники и магазины.
Удобное транспортное сообщение позволяет быстро добраться до нужного места. В пешей доступности остановки общественного транспорта, откуда можно легко доехать в любой район города.
Квартира продается по договору купли-продажи. Юридически чистая, без обременений, поэтому сделка пройдет быстро и без проблем. Подходит под ипотеку.
Звоните и записывайтесь на просмотр! Это отличная возможность найти свой новый дом в комфортном районе с развитой инфраструктурой. Мы будем рады ответить на все ваши вопросы и показать квартиру в удобное для вас время.