Номер лота: вт-0428731.
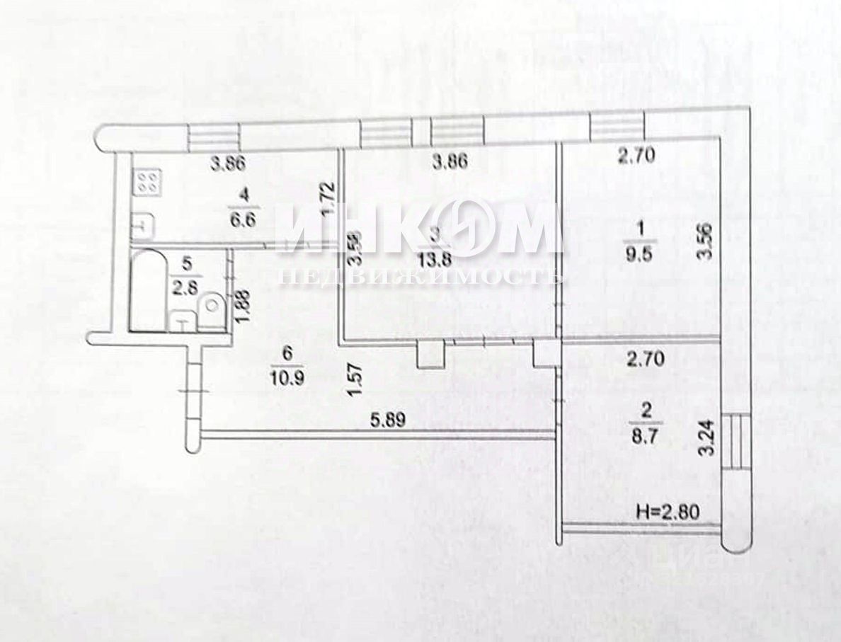
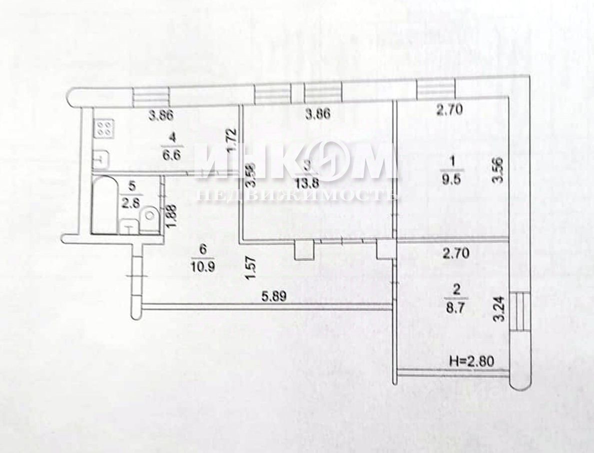
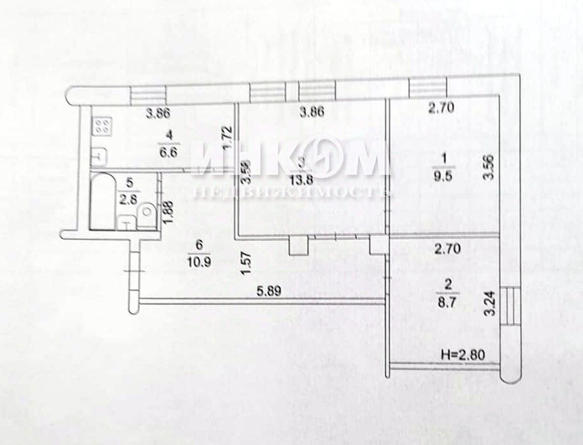
Один взрослый собственник. Квартира на 2 этаже 2-этaжнoго кирпичного дома (1973г.) - стены кирпичные, перекрытия железобетонные. Косметический ремонт. Возможна продажа с мебелью.
Вся необходимая инфраструктура буквально в паре минут ходьбы: магазины, школы, детские сады, поликлиники, колледж, аптеки, дом культуры с развивающими кружками для детей и взрослых и многое другое.
Для тех, кто ценит время и комфорт в перемещениях: железнодорожная станция (Павелецкое направление) и автобусная остановка в ближайшем доступе.
Соседи и окружение: спокойный район, приличные соседи, тихий двор
Содействие в получении специальных условий и преференций по ипотеке.


















