Термин "Чистая продажа" означает, что в квартире никто не прописан или
есть куда выписаться и вывезти вещи. Это лучший вариант для покупателя.
Вероятность срыва сделки минимальна.
Представьте: Вы сели в автомобиль после напряженного рабочего дня в центре Москвы и через 30 минут уже ужинаете дома в окружении семьи с видом на лес из окна. Все для вкусного ужина можно купить в Азбуке вкуса в 5 минутах от дома, а можно заказать доставку из ВкусВилла или Кофемании. Для Вас все рядом! Территория поселка огорожена и строго охраняется. Во дворе детская площадка, детский клуб.
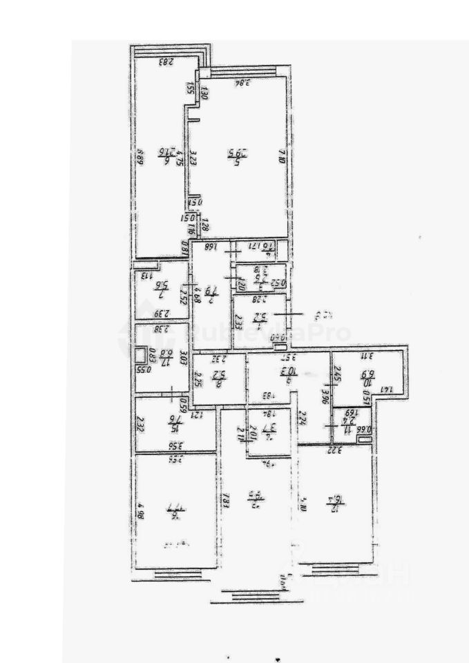
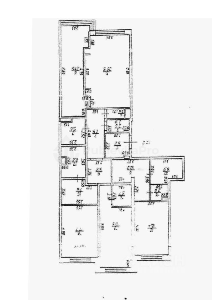
В квартире площадью 179 метров для всех есть место, ведь в ней три раздельных спальни со своими санузлами с душем и ванной, гостевой санузел, две гардеробные комнаты, постирочная и кладовая комнаты. Гостиная отделена от кухни гипсокартонной перегородкой, что позволяет прикрыть от гостей зону приготовления и добавляет место для рабочих поверхностей.
Представьте: Вы сели в автомобиль после напряженного рабочего дня в центре Москвы и через 30 минут уже ужинаете дома в окружении семьи с видом на лес из окна. Все для вкусного ужина можно купить в Азбуке вкуса в 5 минутах от дома, а можно заказать доставку из ВкусВилла или Кофемании. Для Вас все рядом! Территория поселка огорожена и строго охраняется. Во дворе детская площадка, детский клуб.
В квартире площадью 179 метров для всех есть место, ведь в ней три раздельных спальни со своими санузлами с душем и ванной, гостевой санузел, две гардеробные комнаты, постирочная и кладовая комнаты. Гостиная отделена от кухни гипсокартонной перегородкой, что позволяет прикрыть от гостей зону приготовления и добавляет место для рабочих поверхностей. Зона столовой расположена у панорамных окон. При желании можно все объединить в единое пространство. В квартире высокие потолки 3,5 метра, панорамные окна на две стороны с видом на лес и во двор. Установлена вся необходимая бытовая и кухонная техника, мебель. В доме есть отапливаемый охраняемый подземный паркинг.
Новое Лапино - элитный коттеджный посёлок в окружении Ново-Дарьинского леса. В поселке свой фитнес клуб с 3 бассейнами, теннисными кортами, залом для кардиотренировок, силовых и групповых занятий. В Лапинской галерее есть все бытовые услуги, необходимые для жизни. Салоны красоты для мужчин и женщин, Тайский СПА, аптека, химчистка, грумминг для животных и прочее.
Отличная экология, чистейший воздух, быстрый доступ к столице по платной трассе (15 минут до МКАД). И всё это в сочетании с современным дизайном домов и квартир, развитой собственной инфраструктурой, надёжной охраной всей территории.
Заинтересовал объект? Пишите или звоните нам в любое время! Оставьте в сообщении свой номер телефона для обратной связи! Мы перезвоним вам в течение дня. Наше агентство - прямой представитель собственника этого дома, поэтому мы сможем ответить на все ваши вопросы. Каждому клиенту мы гарантируем полное юридическое сопровождение. В удобное для вас время организуем показ!