Если цена в объявлении изменится, мы сразу сообщим вам об этом на электронную почту.
Нажимая «Подписаться», вы соглашаетесь с правилами.
продам 1-к, Первомайская, 374 300 000 ₽
31 окт
Дата публикации объявления
Обн. 26 янв
Дата обновления объявления
8
Количество просмотров (+ просмотры за сегодня)
138 264 ₽/м²
Чистая продажа
Термин "Чистая продажа" означает, что в квартире никто не прописан или
есть куда выписаться и вывезти вещи. Это лучший вариант для покупателя.
Вероятность срыва сделки минимальна.
Уютная 1-комнатная квартира в Ступино — отличный вариант для жизни или аренды!
Продаётся 1-комнатная квартира по адресу: г. Ступино, ул. Первомайская, д. 37 Дом кирпичный, тёплый, 1962 года постройки, расположен в районе с развитой инфраструктурой и удобным транспортным сообщением.
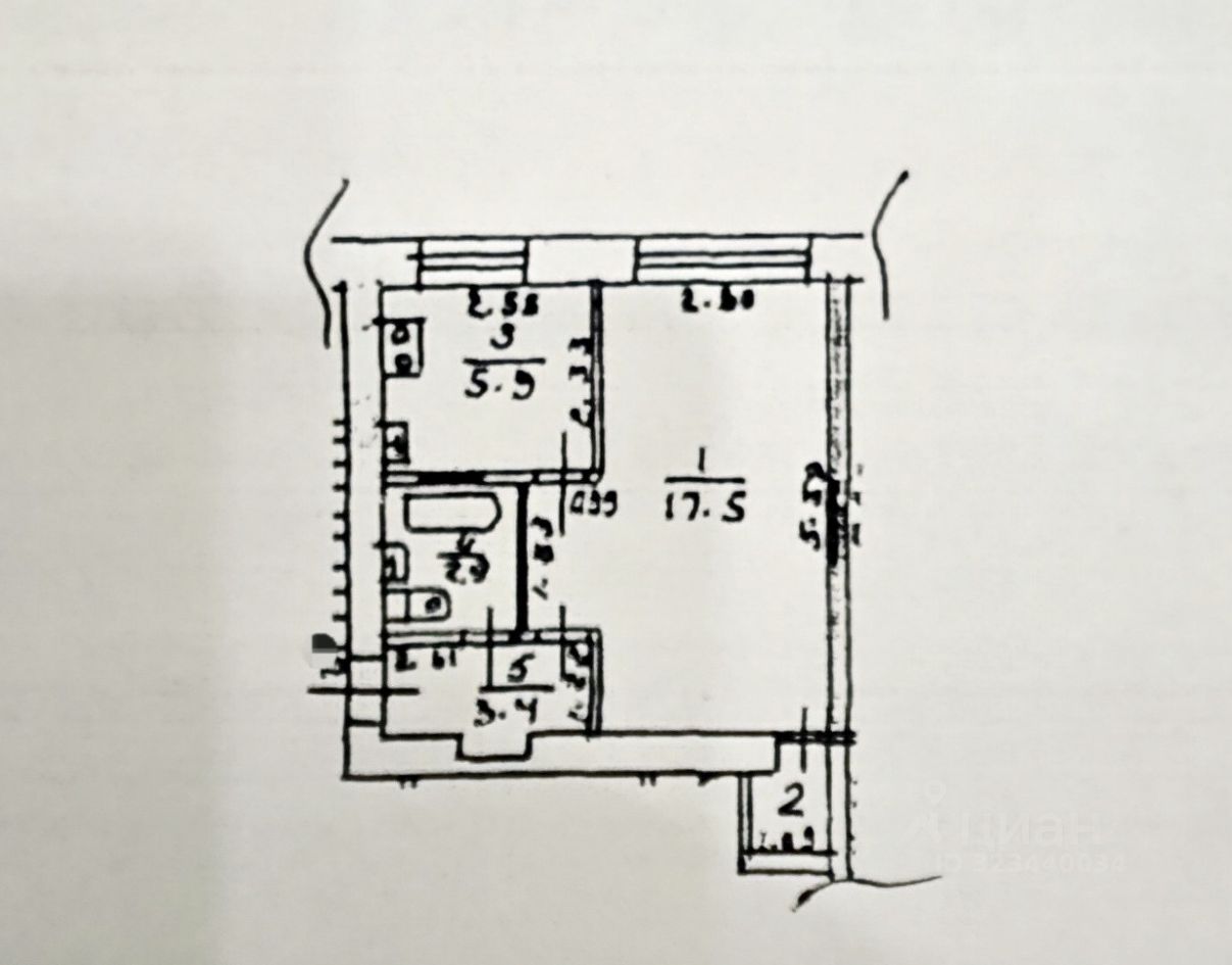
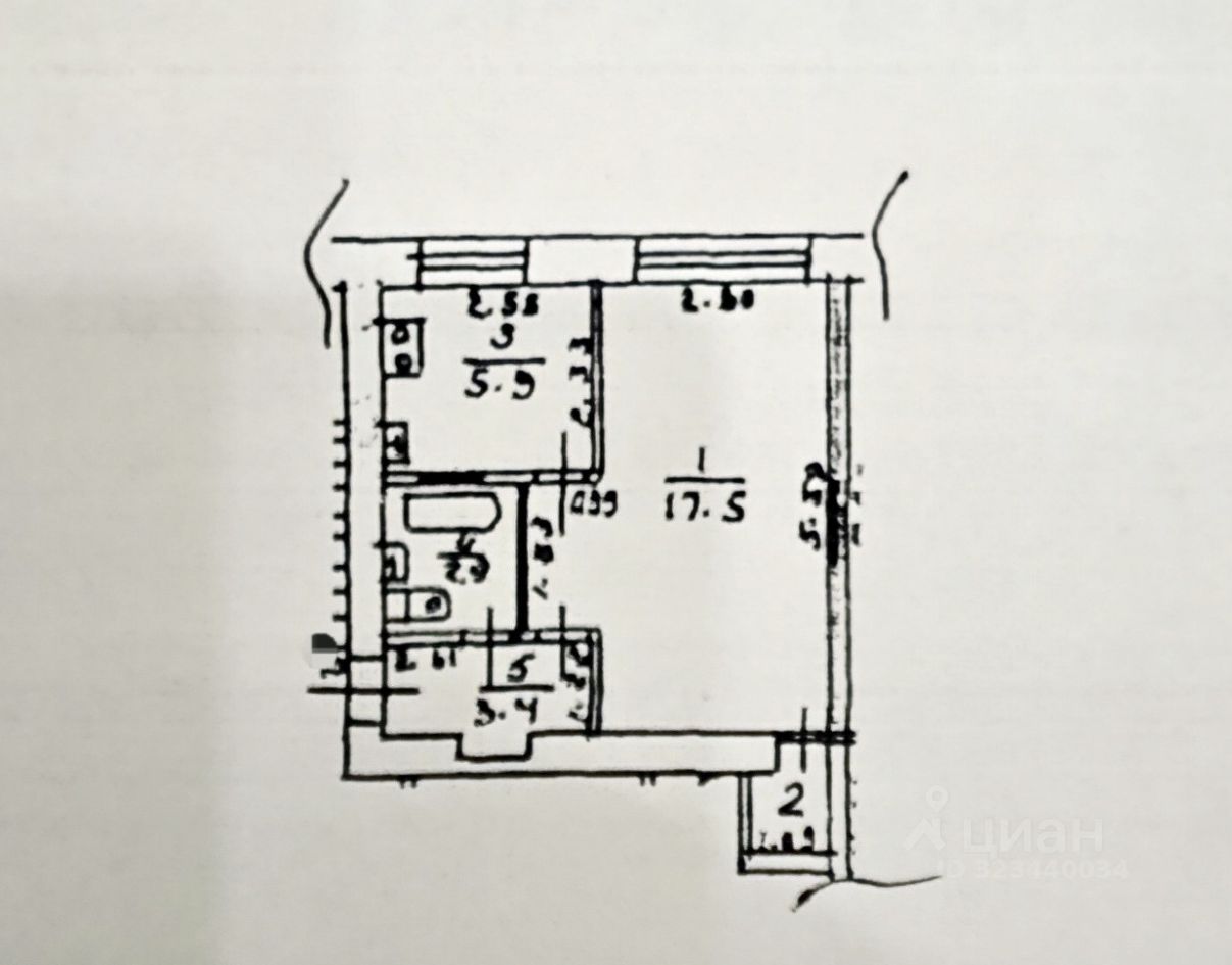
Параметры: • Общая площадь — 31,1 м² • Комната — 17,5 м², светлая и уютная • Кухня — 5,9 м², удобно спланированная • Санузел совмещён • Вместительная кладовая— отличное место для хранения • Балкона нет
Состояние: Квартира в аккуратном жилом состоянии — можно заехать и жить, либо сделать ремонт под себя.
Арт. 123975349
Уютная 1-комнатная квартира в Ступино — отличный вариант для жизни или аренды!
Продаётся 1-комнатная квартира по адресу: г. Ступино, ул. Первомайская, д. 37 Дом кирпичный, тёплый, 1962 года постройки, расположен в районе с развитой инфраструктурой и удобным транспортным сообщением.
Параметры: • Общая площадь — 31,1 м² • Комната — 17,5 м², светлая и уютная • Кухня — 5,9 м², удобно спланированная • Санузел совмещён • Вместительная кладовая— отличное место для хранения • Балкона нет
Состояние: Квартира в аккуратном жилом состоянии — можно заехать и жить, либо сделать ремонт под себя. Благодаря удобной планировке и удачному расположению, квартира идеально подойдёт как для проживания, так и для сдачи в аренду — отличный вариант инвестиций!
Инфраструктура: Рядом магазины, аптеки, школы, детский сад, остановки общественного транспорта. До центра города — несколько минут пешком.
Звоните прямо сейчас и записывайтесь на просмотр! Один взрослый собственник. Документы готовы, быстрый выход на сделку!
Каждому клиенту — Новый адрес без рисков и лишних переживаний. Мы гарантируем безопасность сделки, проверку объекта и юридическую чистоту. Покупайте без стресса — с нами только уверенность, комфорт и надёжность!