3-к, Новое Лапино кп, 53 Показать на карте
Лапино
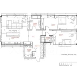
Квартира площадью 144,2 кв.м. не учитывая площадь балкона 42 кв.м. Расположена на втором этаже. В прихожей две гардеробные и общий санузел. Из гостиной есть вход на кухню (вся техника установлена). Две спальные комнаты, каждая со своим санузлом. Полы с плиткой подогреваются, все комнаты оснащены кондиционерами.Новое Лапино - элитный коттеджный посёлок в окружении Ново-Дарьинского леса. Отличная экология, чистейший воздух, быстрый доступ к столице по платной трассе (15 минут до МКАД). И всё это в сочетании с роскошным и современным дизайном домов и квартир, развитой собственной инфраструктурой, надёжной охраной всей территории. Чтобы почувствовать весь комфорт загородной жизни, предлагаем снять в аренду или купить просторные загородные квартиры, таунхаусы в Новом Лапино или коттеджи, тем более цены, для Рублёвки, здесь очень демократичные. Все объекты в посёлке находятся в состоянии ''под ключ'' и готовы к заселению!
144 м2
2 / 5 этаж
- Показать контакты
- Добавить в избранное
144 м2
2 / 5 этаж
39 900 000
276 699 /м2
