Дом, 2-я, 40 Показать на карте
Ступино
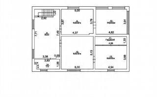
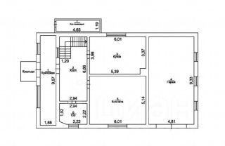
Арт. 135986712 Продаётся тёплый, уютный двухэтажный дом 90 м² из оцилиндрованного бревна на участке 6 соток в Московской области в черте города Ступино, СНТ ''Металлург2''. На участке дом, летний гостевой домик с кухней терассой, два хоз. блока.Дом 2011 года постройки, ленточный фундамент, крыша металлочерепица, санузел в доме (душевая кабина, унитаз, раковина), интернет WiFi , ТВ - подходит как для дачи, так и для круглогодичного проживания, возможна прописка.Планировка удобна как для семьи, так и для индивидуального проживания: на первом этаже - большая прихожая, гардеробная, кухня, санузел (душевая кабина, унитаз, раковина, водонагреватель) и просторная гостинная с печью, на втором этаже - две раздельные комфортабельные комнаты для четверых человек. Дом окрашен снаружи, внутри стены гипоаллергенный лак, между брёвен джут — в доме уютно, зимой тепло, летом не душно.Летний гостевой домик 4,56 м с кухней-террасой и двумя комнатами.Помимо двух хоз. блоков на участке, за территорией участка есть погреб, хватает пространства и для жизни, и для хранения, и для отдыха.Участок 6 соток правильной формы 2030 м, полностью освоен: шикарный газон, плодовые деревья и кустарники, цветники, теплица, парковка для двух авто, ворота распашные с фиксатором. Новому владельцу остается только любоваться цветами и собирать урожай овощей и ягод.Канализация колодец из двух колец с переливом, откачивать необходимо раз в год при круглогодичном проживании, электричество в доме. Въезд в СНТ через автоматические ворота, территория охраняется, подъезд к дому круглый год по асфальту, участок на центральной улице, недалеко от въезда. По всей территории СНТ установлены камеры. Многие живут в СНТ круглогодично. На территории СНТ есть детская площадка и чистый, красивый пруд, где можно купаться и отдыхать у воды. До ж/д станции Ступино около 20 минут пешком, до автобусной остановки — 5 минут, откуда ходят автобусы в город Ступино и к станции. СНТ сразу за границей города: рядом вся инфраструктура Ступино — школы, детсады, поликлиники, торговые центры, спорт и услуги. До МКАД около 80 км по трассе М4, удобный выезд в сторону Москвы.Дом готов встретить своего хозяина, заезжайте и живите!Каждому клиенту - Новый адрес без рисков и лишних переживаний!Мы гарантируем безопасность сделки, тщательную проверку объектов, самые выгодные условия ипотеки и минимальные заботы.Покупайте без стресса! С нами вы получаете только уверенность и комфорт!Вам подойдет дом если вы искали:Купить дачу, купить дом, ккупить дом с участком в московской области, дом с землей московская область, купить частный дом в подмосковье, дом для пмж в московской области, купить дом с пропиской московская область, дом с коммуникациями в московской области, дом с участком недорого московская область, купить дом с участком рядом с лесом подмосковье, купить дом с участком у воды в московской области, купить дом для круглогодичного проживания в подмосковье, купить дом 6 соток в московской области, дом с участком без посредников московская область, купить дом в садовом товариществе подмосковье, дом с участком в деревне московская область, дом под ключ в подмосковье, дом с участком рядом с ж/д станцией в московской области, купить дом с большим участком в подмосковье, купить дачу с участком в московской области.
90 м2
2 этажа
Дерево
- Показать контакты
- Добавить в избранное
90 м2
2 этажа
Дерево
6 300 000
70 000 /м2
