Производственное помещение
Транспортная, 10 Показать на карте
Транспортная, 10 Показать на карте
Ступино
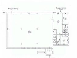
Арт. 88621965 Продается административно-производственное здание 1800 кв.м на земельном участке промышленного назначения 40 соток в центре г. Ступино, Московской обл.. До МКАД 88 км по М4 Дон. Часть зданий зарегистрирована. Земельный участок относится по ПЗЗ к зоне-П (см. фото об основных видах использования. Под размещение офисных помещений отведено около 400 кв.м, остальная площадь, около 1400 кв.м - это производственно-складская площадь с переменной высотой потолков от 3 до 6 метров. Около 1400 кв.м отапливаемые, около 400 кв.м используется под закрытое неотапливаемое складирование. Все задания построены из кирпича и бетона. С начала эксплуатации и поныне территория используется под активную производственную деятельность по фасовке и упаковке приправ, специй, добавок. Ремонт не требуется, кровля основного здания заменена в 2024г.. Коммуникации: -электричество 104 кВт (с возможностью увеличения мощности) -собственный колодец -городская канализация -газовое отопление 2 котла по 150 кВт. Очень удобное расположение зданий относительно земельного участка. По фасаду заезд для большегрузного транспорта. 97% территории покрыто асфальтом. Участок огорожен и располагается по соседству с промышленной территорией. Продажа от стабильного юридического лица с тридцатилетней историей и высокой надежностью. Возможна продажа с имеющимся оборудованием. (подробности по телефону).
1800 м2
- Показать контакты
- Добавить в избранное
1800 м2
82 000 000
45 556 /м2
