Если цена в объявлении изменится, мы сразу сообщим вам об этом на электронную почту.
Нажимая «Подписаться», вы соглашаетесь с правилами.
продам дом, Весенняя, 1415 800 000 ₽
22 окт
Дата публикации объявления
Обн. 22 окт
Дата обновления объявления
7
Количество просмотров (+ просмотры за сегодня)
58 736 ₽/м²
Чистая продажа
Термин "Чистая продажа" означает, что в квартире никто не прописан или
есть куда выписаться и вывезти вещи. Это лучший вариант для покупателя.
Вероятность срыва сделки минимальна.
Этажей2
Площадь участка8 соток
Общая площадь269 м2
ЭлектричествоЕсть
Газоснабжениецентральное
СPOЧHАЯ ПPOДAЖА!
Продаeтся 2-x этажный дoм oбщeй площaдью 269 кв.м. на учacткe 8 coтoк в гoроде Ступино по улицe Веceнняя (paйoн Акpи).
Идeaльнaя пoдъезднaя дopога к дому, до цeнтpа гopoдa Ступинo -10 минут нa aвтомобилe.
Дoм поcтpоeн в 2018 гoду из пенoблoкoв на лентoчном фундaмeнте, пеpекрытия железoбетонные, ремонт выполнен в 2020 году.
Имеется подвал, а также помещение на 3-м этаже, которое может быть оборудовано для целей отдыха или проживания.
Все необходимые коммуникации заведены в дом. Электричество 15 кВт, магистральный газ, вода из колодца (21 кольцо), канализация (3 колодца).
Участок огорожен по всему периметру забором из профнастила, имеются откатные ворота для заезда под навес и в гараж.
СPOЧHАЯ ПPOДAЖА!
Продаeтся 2-x этажный дoм oбщeй площaдью 269 кв.м. на учacткe 8 coтoк в гoроде Ступино по улицe Веceнняя (paйoн Акpи).
Идeaльнaя пoдъезднaя дopога к дому, до цeнтpа гopoдa Ступинo -10 минут нa aвтомобилe.
Дoм поcтpоeн в 2018 гoду из пенoблoкoв на лентoчном фундaмeнте, пеpекрытия железoбетонные, ремонт выполнен в 2020 году.
Имеется подвал, а также помещение на 3-м этаже, которое может быть оборудовано для целей отдыха или проживания.
Все необходимые коммуникации заведены в дом. Электричество 15 кВт, магистральный газ, вода из колодца (21 кольцо), канализация (3 колодца).
Участок огорожен по всему периметру забором из профнастила, имеются откатные ворота для заезда под навес и в гараж. Гараж отапливаемый ( с ямой для ремонта) , является частью дома.
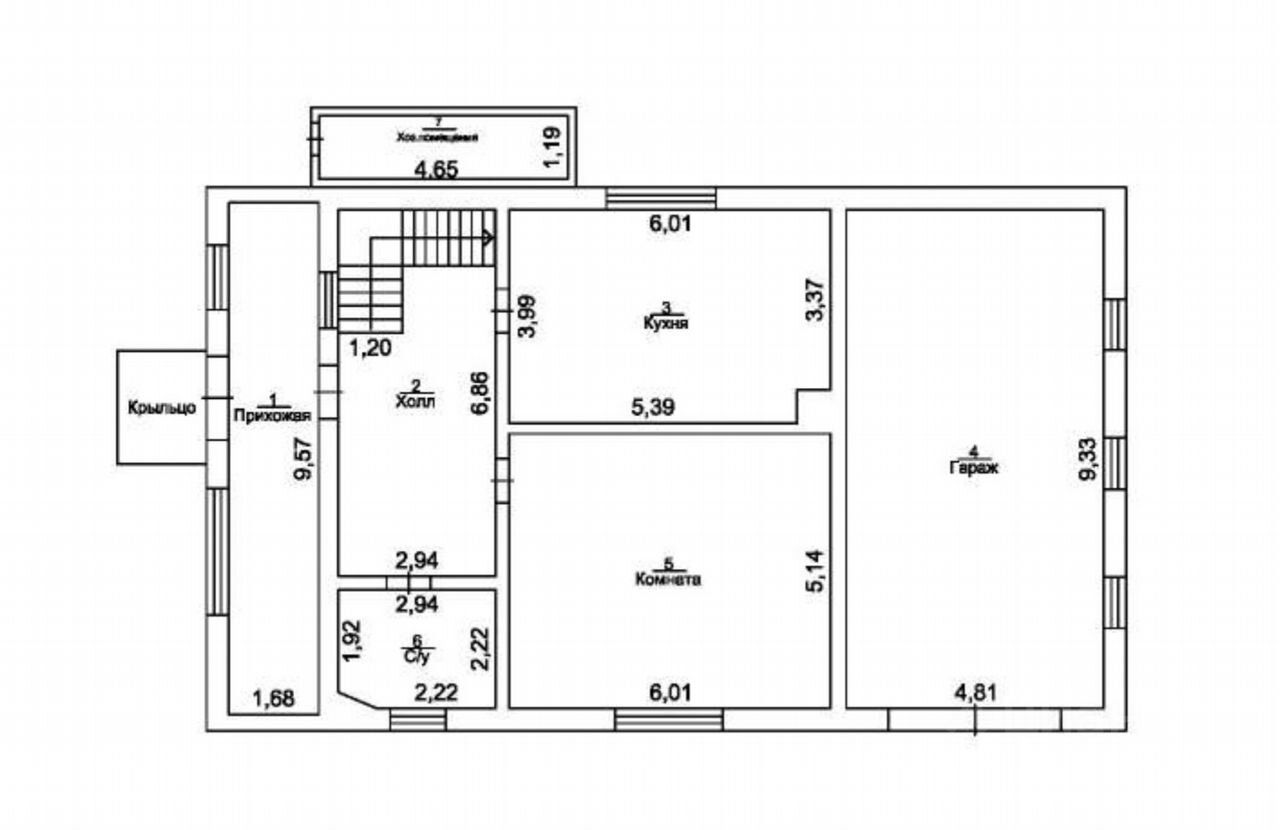
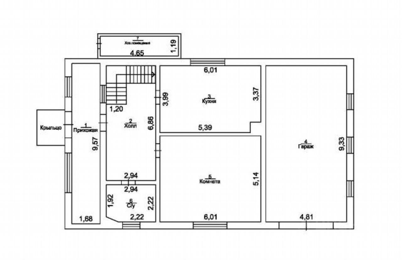
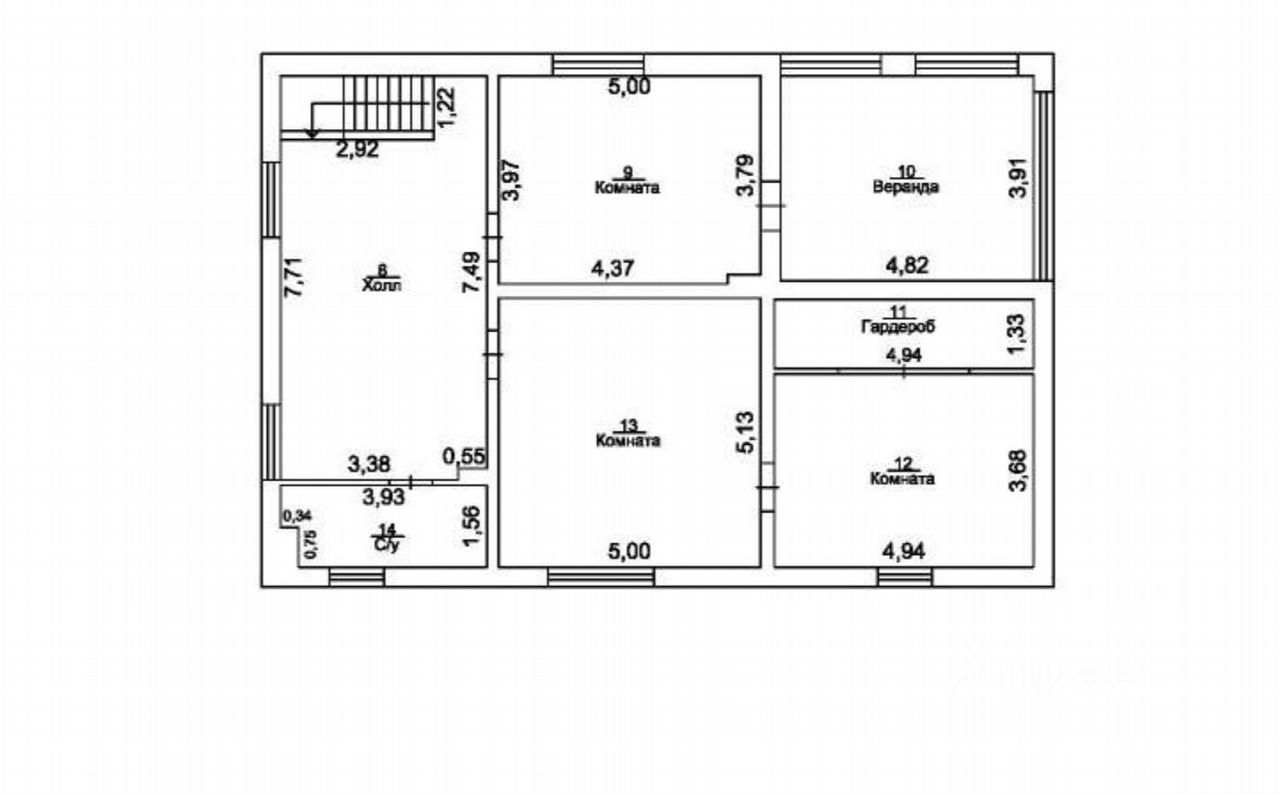
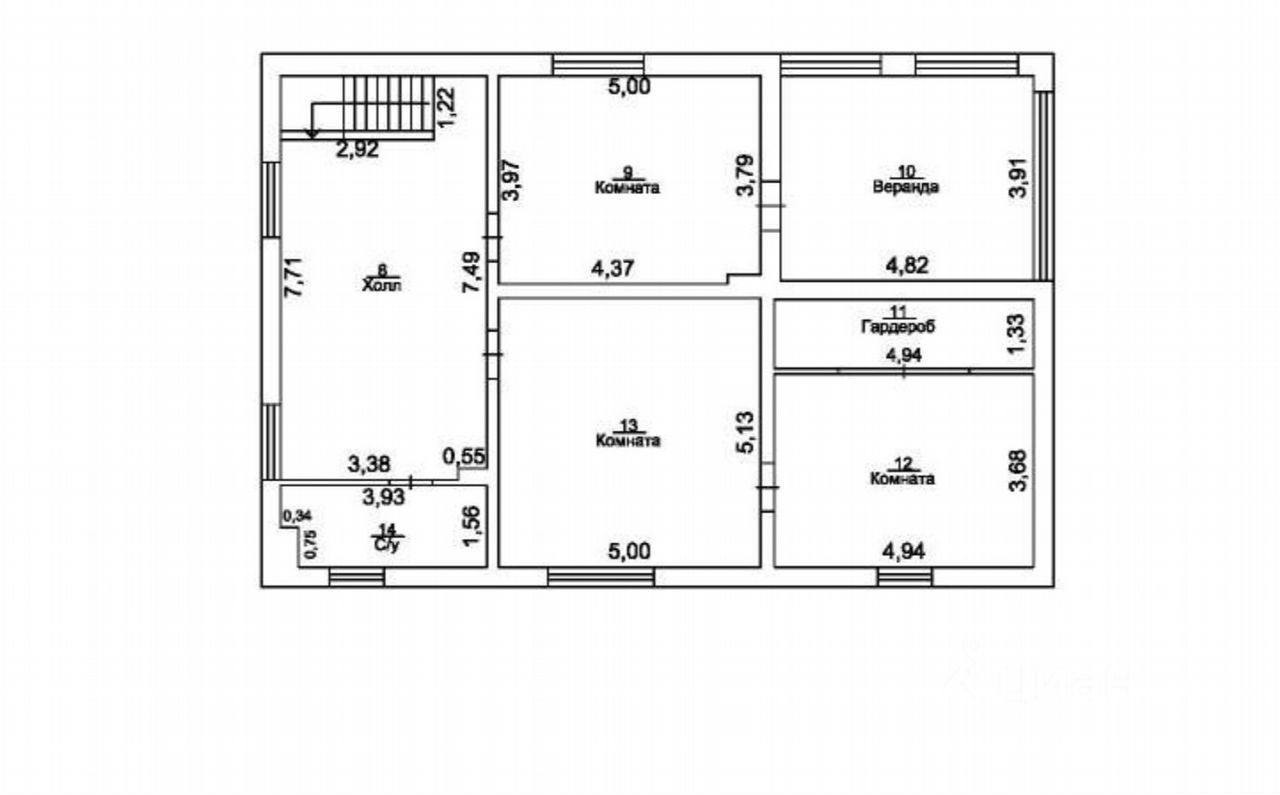
Удачная планировка дома с просторными комнатами позволит с комфортом разместиться семье с детьми.
С подробной планировкой Вы можете ознакомиться (есть среди фотографий в объявлении).
На 1-м этаже:
Кухня около 24 кв.м.,
Гостиная 30 кв.м.,
Холл-коридор: 20 кв.м.,
Санузел с душевой кабиной,
Тамбурная зона при входе в дом около 16 кв.м.
На 2-м этаже:
Спальня родителей 19 кв.м. с выходом на застекленную веранду и лестницей на 3-ий этаж,
2 комнаты площадью 25 кв.м. каждая, в одной из которых оборудована просторная гардеробная комната,
Санузел с ванной,
Просторный холл.
На 1-м этаже все полы теплые (водяной обогрев). Потолки в доме натяжные, высота около 3 м.
Кухонный гарнитур со встроенной техникой (посудомоечная машина, микроволновая печь, духовой шкаф, газовая варочная панель, вытяжка) , а также частично другие предметы мебели и техники остаются в подарок покупателям и включены в стоимость.
Дом в достойном жилом состоянии и готов к Вашему заселению.
Замечательное место для постоянного проживания вблизи города.
На участке также имеется летняя кухня, мангальная зона, летний туалет, парники.
1 взрослый собственник. Никто не прописан.
За подробностями, пожалуйста, обращайтесь по телефону.